Centralnorthshoreproperty

powered by Open2view.com
SOLD

Auckland
4
3
N/A
305sqm
6508sqm
Auckland
proudly marketed by
RULE OR DIVIDE
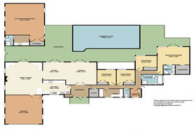
RULE OR DIVIDE Your own peaceful oasis. A tree-lined lane and circular driveway leads you to this exceptional and attractive family residence offering fabulous private and country style living. Experience the unique North facing living areas and seamless indoor/outdoor flow catching every ray of sunlight. This family residence sits on 6508 m2 of wonderfully landscaped easy to maintain park-like gardens,including a lovely swimming-pool and ample parking. Separate from the main house is a quaint well-presented 'Old School Building'. Currently used as a studio with a separate bathroom and kitchen area. Ideal for home workers, guest quarters or teenagers. But there is more .... the 6508 m2 section has concept plans for possible sub-divisions, in 2 or 3 lots - you choose! Options are: 1/ Enjoy this gorgeous resort style residence, with 3 living rooms, 4 double bedrooms, 2 bathrooms and en-suite, study, self-contained studio, double garage, off street parking for 8 cars and a swimming-pool. 2/ Subdivide in 2 lots: house retains a 2558 m2 site and lot 2 gets 3950 m2. 3/ Subdivide in 3 lots: house retains a 2558 m2 site, lot 2 offers 2258 m2 and lot 3 has 1692 m2. Concept plans available upon request. Secure your future acquire now!
Question
Please leave this field blank:
Upload by Bev & Rich Snyders
Auckland North Shore, Rodney District
This property was photographed by